The Two Step House is a Selene quixotic noir edurama onyx.



  • 3 Bedrooms

  • 3 Bathrooms

  • 2 combined living, dining, kitchen

  • Sunroom

  • Triple garage leading into a mudroom

  • Outdoor entertaining area

  • Floor Area – 293 m2

  • Garage – 58 m2

  • Outdoor Area – 56 m2

AT A GLANCE:

Selente ipsum quixotica noia edurama dolore

Lorem ipsum dolor sit amet, consectetur adipiscing elit, sed do eiusmod tempor incididunt ut labore et dolore magna aliqua. Ut enim ad minim veniam, quis nostrud exercitation ullamco laboris nisi ut aliquip ex ea commodo consequat. Duis aute irure dolor in reprehenderit in voluptate velit esse cillum dolore eu fugiat nulla pariatur. Excepteur sint occaecat cupidatat non proident, sunt in culpa qui officia deserunt mollit anim id est laborum.

Ipsum faucibus vitae aliquet nec ullamcorper sit amet risus nullam. Bibendum at varius vel pharetra vel turpis nunc eget lorem. Rutrum tellus pellentesque eu tincidunt tortor aliquam. Cras adipiscing enim eu turpis egestas. Sed felis eget velit aliquet sagittis id consectetur. Dolor sit amet consectetur adipiscing elit. Amet consectetur adipiscing elit pellentesque. Felis donec et odio pellentesque. Scelerisque eu ultrices vitae auctor eu augue. Sapien et ligula ullamcorper malesuada. Libero volutpat sed cras ornare arcu dui vivamus arcu felis.

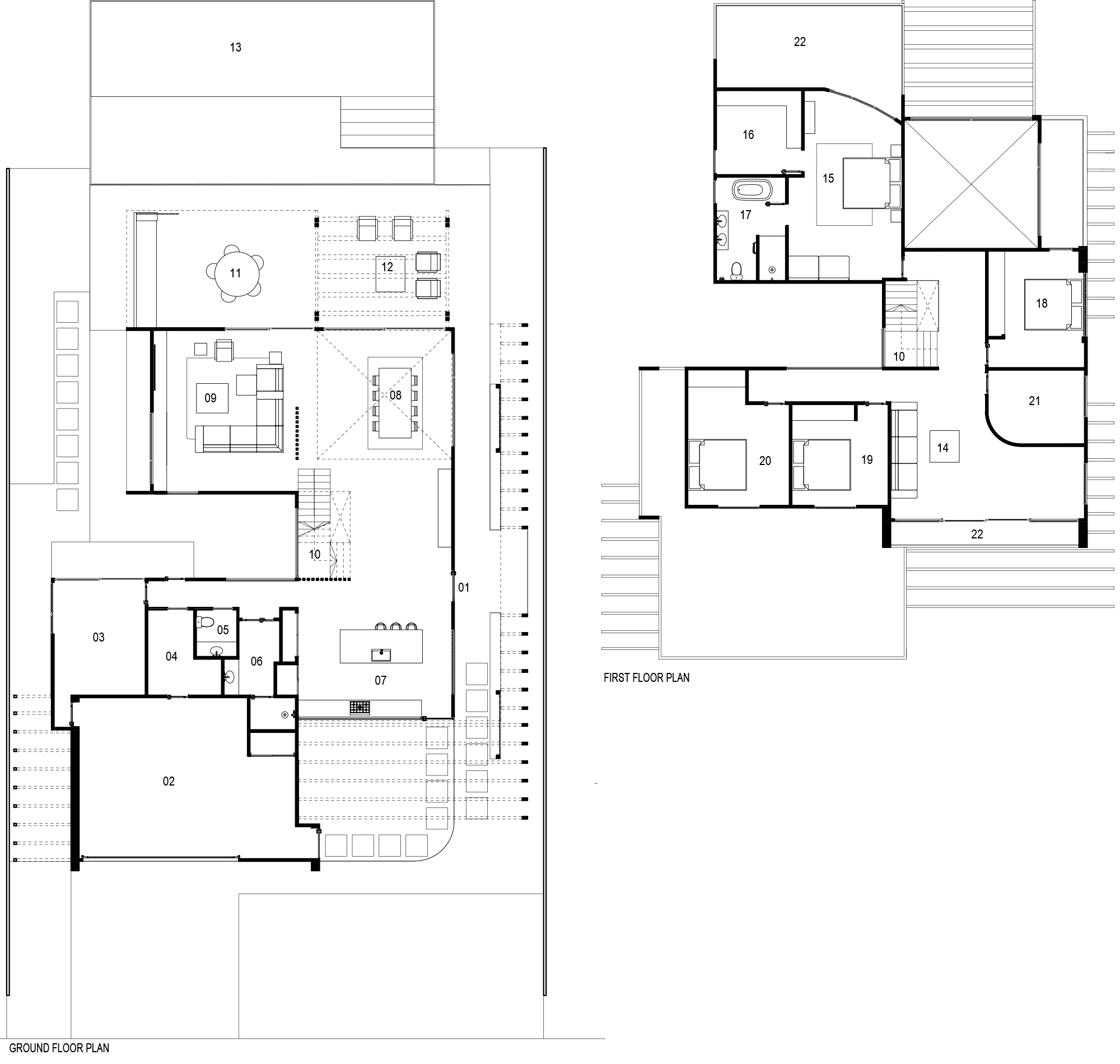
12. Outdoor living
13. Pool
14. Flexi
15. Master bedroom
16. Walk in robe
17. Ensuite
18. Bedroom 02
19. Bedroom 03
20. Bedroom 04
21. Bathroom
22. Balcony

1. Entry
2. Garage
3. Office
4. Laundry
5. Powder room
6. Bathroom
7. Kitchen
8. Dining
9. Living
10. Stair to upper / lower level
11. Outdoor dining

THE COLLECTIONS: retreatnew englandcoastalamerican