The Wattle House is a charming country home blending form and function



  • 3 Bedrooms

  • 3 Bathrooms

  • 2 combined living, dining, kitchen

  • Sunroom

  • Triple garage leading into a mudroom

  • Outdoor entertaining area

  • Floor Area – 293 m2

  • Garage – 58 m2

  • Outdoor Area – 56 m2

AT A GLANCE:

Register your interest
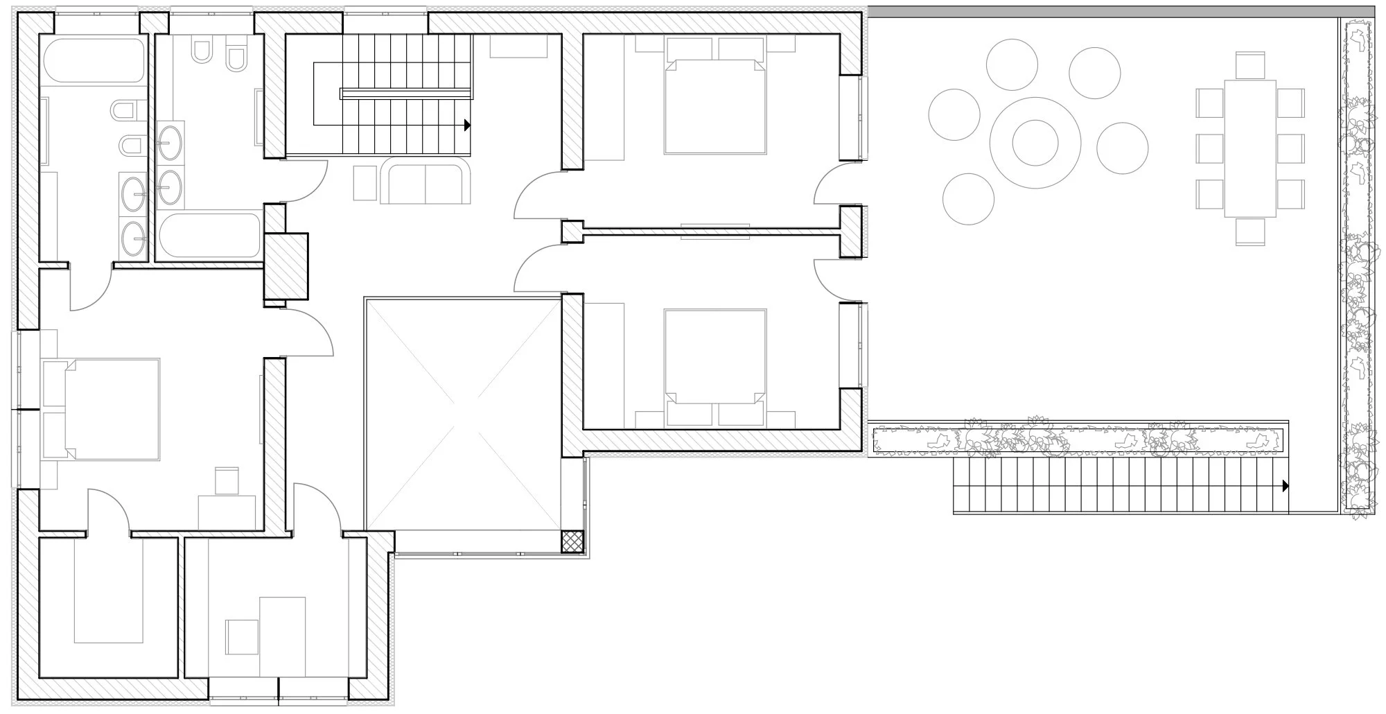
  1. Front entry

  2. Guest bedroom

  3. Front lounge

  4. Master bedroom

  5. Master WIR

  6. Master ensuite

  7. Bathroom

  8. Kitchen

  9. Pantry

  10. Outdoor deck

  11. Courtyard

  12. Lounge

  13. Powder room

  14. Study

  15. Garage

  16. Balcony

This charming country home is the perfect blend of form and function.

Designed with accessibility as a standard, it has been thoughtfully programmed with in-house carers or potentially alternate family members staying to help the occupant. The sturdy materials used in the construction of the home blend seamlessly with the surrounding landscape, creating a harmonious and natural aesthetic.

The home is not only perfect for accessible living but is also ideal for a lovely family home with young kids. The outdoor space blends seamlessly with the interior open living kitchen and dining areas, creating a bright and welcoming atmosphere. The house's design allows for unobstructed views from all angles, ensuring that the surrounding landscape can be enjoyed at any moment. Whether you're enjoying a family meal or relaxing by the fireplace, the views from this home are truly breathtaking.

Overall, this country home is a perfect blend of beauty and functionality. Its accessibility and thoughtful programming make it perfect for individuals who require in-house care, while its charming design and inviting atmosphere make it an ideal family home. The stunning views and seamless integration with the surrounding landscape create a peaceful and tranquil atmosphere, providing the perfect escape from the hustle and bustle of city living.

The Wattle House / New England

The house collection designed for the New England climate and client is a striking blend of versatility and personality. Each house has been meticulously crafted to cater to a diverse range of lifestyles, ensuring that they are adaptable to any future changes in the client's life. The collection is predesigned for flexibility and futureproofing, providing residents with the opportunity to evolve their living spaces as their needs change over time.

With a keen emphasis on uniqueness and creativity, every house in this collection is designed to stand out from the crowd, with abundant personality woven into every detail. The houses are cleverly crafted to embrace the rugged beauty of the New England climate, ensuring that they are both practical and stylish in equal measure.

Register your interest
New England Collection